lunedì 20 settembre 2010

FUNZIONE DEI MURI DI SOSTEGNO


FUNZIONE DEI MURI In relazione alla loro funzione si possono dividere in:
a) muri di sostegno propriamente detti : l'altezza del muro è uguale quella del terrapieno che deve sostenere e pertanto assolvono a una funzione statica;
b) muri di sottoscarpa : la loro altezza è inferiore a quella del terrapieno per cui il terreno posto oltre il limite superiore costituisce un sovraccarico e viene disposto secondo il piano di natural declivio
c) muri di controripa: adagiati e rivestono il terreno
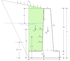
Le due pareti esterna e contro terra vengono generalmente chiamate paramenti esterno e interno.
possono avere le seguenti tipologie di profili trasversali:
a) muro con sezione rettangolare solo per altezze sino a 1,80 - 2,00 m circa;
b) muro con sezione trapezia: viene usata per altezze di terrapieni -io a 5,00 m circa e può essere realizzata con paramento:
a volte il paramento interno viene sostituito da riseghe, realizzano gradoni 0.1-0.15 ogni m di H
c)muro con speroni o contrafforti interni o esterni: per altezze superiori a 5,00 m circa, al fine di contenere lo spessore dell'opera di sostegno, e quindi renderla più economica, il muro viene sostenuto da rinforzi detti speroni
d)muro con contrafforti e mensole o voltine interne di scarico: per altezze maggiori di 7,00 ~ 8,00 m, le sezioni sino a ora considerate presentano spessori abbastanza elevati e tali da renderli non più economici, per cui gli speroni vengono collegati, generalmente a interassi costanti, da mensole
le sostegno rigide vengono suddivise in:
a) muri di sostegno a gravità devono presentare un peso elevato notevole spessore;
b) muri di sostegno con soletta verticale a sbalzo: vengono realizzati in cemento armato lo spessore di quei muri è sempre notevolmente contenuto;
c) muri a semigravità: con dimensioni più ridotte, le eventuali tensioni di trazione per flessione vengono fatte assorbire da una ridotta armatura metallica anziché con un aumento sullo spessore del muro

Stumble
Delicious
Technorati
Twitter
Facebook

0 Comments:

Posta un commento

 

formazione online Copyright © 2010 Premium Wordpress Themes | Website Templates | Blog Templates Designed by Lasantha